空き家再生(旧)

外観

経年劣化で汚れた外壁を、クリーム系の色に塗装いたしました。破損していた雨どいの交換を行い、屋根はミルクチョコレートのような色に塗装いたしました。シャッターの洗浄も行っております。

リビング

アコーディオンカーテンで仕切られていた空間を、繋げて一部屋にいたしました。ゆったりとした空間に変わり、ダイニングセットやソファが楽々置けるようになりました。壁紙と床の張替えを行い、シンプルな雰囲気に。大きめの掃き出し窓からは柔らかな日差しが差し込みます。

キッチン

古いキッチンは取り外し、新品へ交換いたしました。色はグレー系で統一し、モダンな雰囲気へ。独立型キッチンのため、お料理のニオイがリビングへ広がりづらいです。

洗面所

傷んでしまった洗面台を取り外し、三面鏡付き洗面化粧台へ交換いたしました。鏡の裏は収納になっているので、整髪料や化粧水などの生活用品をしまうことができます。洗濯機置き場の横にあった壁は取り外し、圧迫感の無いように変更。アクセントクロスにストーン調のものを取り入れ、スッキリとした雰囲気へ生まれ変わりました。洗面台の横には、棚などを取り付けることのできるスペースをご用意いたしました。

浴室

タイル張りの古い浴槽を取り外し、システムバスへ変更いたしました。カウンターは取り外して丸洗いすることが可能なので、お掃除もしやすくなりました。ディープグレーの床は、すべりにくい構造になっています。

トイレ

1階、2階ともに新品へ交換いたしました。壁紙と床の張替えを行い、清潔感のある明るい空間に変化いたしました。ウォシュレット機能付きです。

居室

2階の和室は洋室へと変更いたしました。隣の和室とつながった構造になっていたのを、壁を造作し2部屋に仕切りました。北側には収納を設置。扉は自由に動かせる仕様になっているので、大きめの荷物も楽々収納できます。

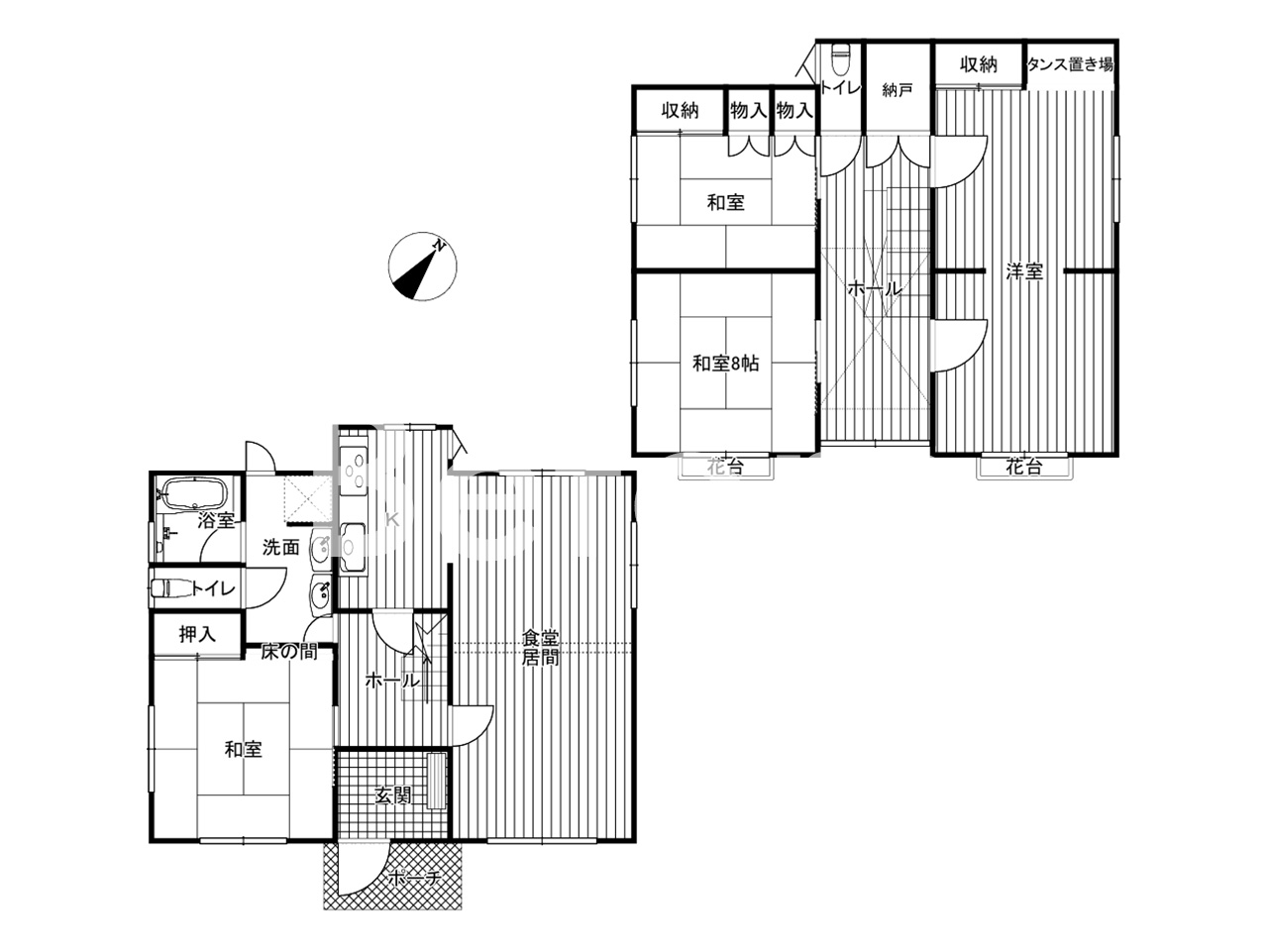
間取り

一部間取り変更を行いました。リビングや寝室は仕切りを外し、一つの広い空間へ。2階の和室は洋室へ変更いたしました。

1階和室

畳表替え、壁紙張替え、建具補修